Добро пожаловать на http://vipplan.ru

Випплан Батайск - это тысячи проектов домов в нашем каталоге!

Вы всегда сможете найти для себя проект дома вашей мечты! Даже если этого не случилось, мы готовы в любую минуту предложить проект индивидуального дома.

Забыли пароль?
Вы еще не регистрировались?

Перейдите по ссылке ниже на страницу регистрации.

Регистрация...

Внимание!!!

В проектную документацию могут быть внесены изменения любой сложности, в соответствии в Вашими пожеланиями!

Полезные статьи

Печи и камины в частном доме

Спросите любого человека, и вы поймете, что каждый человек мечтает иметь свой собственный дом, который он сможет обустроить так, как ему хочется. Этот дом будет полон уюта, тепла, света и комфорта, а главное, что, придя с работы, человек сможет запросто отдохнуть у своего очага.  Нет никакой альтернативы перед выбором печи или камина. Эти две вещи не сможет  заменить ни искусственный свет, ни солнечное освещение. Камин и печь, с древности, считаются предметом роскоши. Ни один большой дом не может обойтись без них, поскольку если удастся сесть и посидеть перед этим местом, то долго нельзя будет...

Перекрытия в доме

Перекрытия – одно из важнейших составляющих строящегося дома. Это горизонтальная внутренняя защитная конструкция, разделяющая по уровню смежные помещения дома. По назначению выделяют подвальные, межэтажные и чердачные перекрытия. При проектировании домов и зданий различного назначения, требования к межэтажным перекрытиям определяются их местоположением и функциями разделяемых помещений: надподвальные, межэтажные, чердачные и т.д....

Проекты домов и коттеджей > Каталог проектов домов > Проект оригинального одноэтажного дома с мансардой и гаражом Vg1468

Проект оригинального одноэтажного дома с мансардой и гаражом Vg1468

Проект оригинального одноэтажного дома с мансардой и гаражом
Зарегистрируйтесь

Проект № Vg1468


Техническое описание
Общая площадь: 168.53 м2
Жилая площадь: 85.84 м2
Высота здания: 8.56 м
Размеры дома: 12.22м×14.52м
Цокольный этаж: нет
Гараж: нет
Мансарда: есть

Kонструкция
Фундамент: Ленточный, монолитный ж/б
Перекрытия: Мононолитная плита
Материал стен: Бетонные блоки

Архитектурный раздел
Конструктивный раздел
Инженерный раздел
АР+КР - 56 000 (Со скидкой 20%)
АР+КР+ИР - 115 150 (Со скидкой 50%)
Проект индивидуального однотажного жилого дома с мансардой с размерами здания 12,22 x 14,52 м. Наружная отделка здания – облицовочный кирпич. Фундамент – ленточный монолитный ж/б (под несущими стенами). Наружные стены – керамические блоки, облицовочный кирпич. Внутренние стены - из керамических блоков. Перегородки – из керамических блоков. Пол первого этажа - пол по грунту. Межэтажное перекрытие - мононолитная плита. Крыша металлочерепица. Кровля – многоскатая. Окна - металлопластиковые, выполненные по индивидуальному заказу.
Генплан застройки участка / Паспорт проекта 7000 руб / 10000 руб
Инженерный раздел (полный) 59150 руб (84500 руб)
Смета на строительство 42250 руб
Теплотехнический расчет материалов стен Бесплатно
Стоимость проекта со незначительнми изменениями 65750 руб
Стоимость проекта со средними изменениями* 78500 руб
Стоимость проекта со значительными изменениями** 81800 руб

План первого этажа


Гараж - 18,44 м2
Бойлерная - 5,47 м2
С/у - 3,35 м2
Прихожая - 7,60 м2
Кухня-столовая - 25,07 м2
Гостиная - 22,53 м2
Гостевая - 16,30 м2
Терраса - 22,21 м2

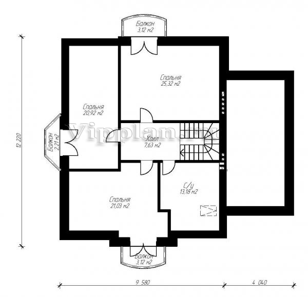
План мансардного этажа


Балкон - 3,12 м2
Спальня - 25,32 м2
Спальня - 20,92 м2
Балкон - 2,21 м2
Холл - 7,63 м2
С/у - 13,18 м2
Спальня - 21,03 м2
Балкон - 3,12 м2
Проект оригинального одноэтажного дома с мансардой и гаражом Проект оригинального одноэтажного дома с мансардой и гаражом Проект оригинального одноэтажного дома с мансардой и гаражом Проект оригинального одноэтажного дома с мансардой и гаражом

Модификации проектов

Внесение изменений и привязка к участку строительства

В любой из проектов от компании VIPplan - Батайск по вашему желанию могут быть внесены изменения в материалы стен, материалы наружной отделки дома, а также будет произведена адаптация проекта под конкретный регион строительства (с учетом грунтов региона, геологических особенностей вашего участка и местных климатических условий) - БЕСПЛАТНО !!! (кроме проектов со скидкой и проектов наших партнеров).

Любой из проектов, размещенных на сайте bataysk.vipplan.ru мы можем выполнить из требуемых вам строительных материалов: ячеистый бетон (газобетон, пеноблок), керамоблок, кирпич, шлакоблок, бетонный блок, дерево (брус, клееный брус), каркасная технология (деревянный каркас, металлокаркас (ЛСТК)).

Фасад дома и его наружную отделку так же возможно выполнить с применением различных облицовочных материалов: структурной штукатурки, (с утеплителем и без), сайдингом (пластиковый или металлосайдинг), фиброплитами, кирпича.

 
6 Избранные
проекты

Доставка проектов по России: Москва (Московская область), Санкт-Петербург (Ленинградская область), Краснодар, Ростов-на-Дону, Ставрополь, Сочи, Волгоград, Новосибирск, Белгород, Брянск, Воронеж, Саратов, Хабаровск, Астрахань, Нальчик, Владикавказ, Екатеринбург, Тюмень, Самара, Нижний Новгород, Казань, Пермь, Уфа, Челябинск, Красноярск, Ханты-Мансийск, Иркутск, Курган, Оренбург, Омск, Томск, Барнаул, Новокузнецк, Кемерово, Абакан, Чита, Якутск, Южно-Сахалинск, Петропавловск-Камчатский и страны ближнего зарубежья: Белоруссия, Украина, Казахстан