Добро пожаловать на http://vipplan.ru

Випплан Батайск - это тысячи проектов домов в нашем каталоге!

Вы всегда сможете найти для себя проект дома вашей мечты! Даже если этого не случилось, мы готовы в любую минуту предложить проект индивидуального дома.

Забыли пароль?
Вы еще не регистрировались?

Перейдите по ссылке ниже на страницу регистрации.

Регистрация...

Внимание!!!

В проектную документацию могут быть внесены изменения любой сложности, в соответствии в Вашими пожеланиями!

Полезные статьи

Уклон кровли дома

Чтобы вода быстрее уходила с кровли Вашего дома, скатам необходимо придать уклон, который выражающийся в процентах или градусах и измеряющийся геодезическими инструментами. Уклон кровли обозначает угол наклона ската к горизонту. Чем больше уклон, тем круче крыша. У новомодных зданий наклон кровли делают не очень большим....

Купить готовый проект дома или заказать индивидуальный?

Перед началом строительства дома возникает необходимость в проекте дома и тут встает вопрос: Купить готовый проект дома или заказать индивидуальный на заказ? Каждый из вариантов по своему хорош и имеет как свои плюсы так и минусы...

Проекты домов и коттеджей > Каталог проектов домов > Одноэтажный дом с большим гаражом Vg997

Одноэтажный дом с большим гаражом Vg997

Одноэтажный дом с большим гаражом
Зарегистрируйтесь

Проект № Vg997


Техническое описание
Общая площадь: 166.04 м2
Жилая площадь: 74.06 м2
Высота здания: 7.48 м
Размеры дома: 15м×17м
Кол-во комнат: 4
Цокольный этаж: нет
Гараж: нет
Мансарда: нет

Kонструкция
Фундамент: Свайно-ростверковый
Перекрытия: Деревянные балки
Материал стен: Бетонные блоки

Архитектурный раздел
Конструктивный раздел

Смета на строительство
АР+КР - 56 000 (Со скидкой 20%)
Проект индивидуального одноэтажного жилого дома с размерами здания 15,12 x 17,52м. Наружная отделка здания - фасадная штукатурка, клинкерная плитка. Цоколь - клинкерная плитка. Кровля - битумная черепица. Отделка вентканалов -штукатурка. Фундамент - свайно-ростверковый (буронабивной). Ростверк -монолитный ж/б. Наружные стены здания: керамзитоблок с утеплением -минеральной ватой и отделкой фасадной штукатуркой/клинкерной плиткой. Внутренние стены - керамзитоблок. Перегородки 1 этажа - керамзитоблок перегородочный. Пол 1 этажа - пол по грунту. Чердачное перекрытие - по деревянным балкам с использованием теплошумоизоляционных материалов типа "URSA" в межбалочном пространстве. Вентканалы выполнить из полнотелого кирпича М 150. Верх вентканала закрыть фурнитурой. Из Кухни, С/у, С/у2 на кровлю трубы выводить в вентиляционную трубу. Установить вентиляционную трубу необходимо через проходные элементы. При помощи проходных элементов изделия герметично монтируются на кровле. Проходной элемент подбирается по типу кровельного материала и диаметру выводимого на кровлю элемента. Перемычки - монолитные железобетонные и сварные из профиля проката. Крыша - многоскатная. Окна - металлопластиковые, выполнить по индивидуальному заказу.
Генплан застройки участка / Паспорт проекта 7000 руб / 10000 руб
Инженерный раздел (полный) 83000 руб
Смета на строительство 31125 руб (41500 руб)
Теплотехнический расчет материалов стен Бесплатно
Стоимость проекта со незначительнми изменениями 65850 руб
Стоимость проекта со средними изменениями* 78300 руб
Стоимость проекта со значительными изменениями** 81600 руб

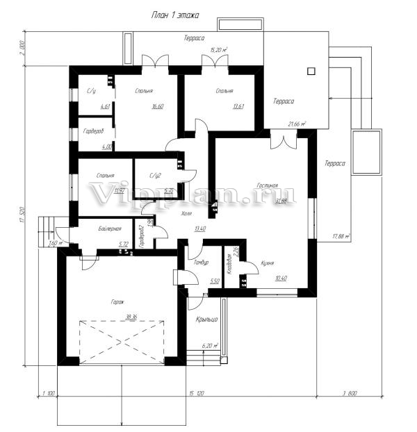
План первого этажа


Тамбур - 5,50 м2
Холл - 13,40 м2
Гостиная - 31,88 м2
Кухня - 10,40 м2
Кладовая - 2,26 м2
Спальня - 13,61 м2
Спальня - 16,60 м2
С/у - 4,61 м2
Гардероб - 4,00 м2
Спальня - 11,97 м2
С/у - 5,75 м2
Бойлерная - 5,72 м2
Гардероб - 1,98 м2
Гараж - 38,36 м2
Одноэтажный дом с большим гаражом Одноэтажный дом с большим гаражом Одноэтажный дом с большим гаражом Одноэтажный дом с большим гаражом

Модификации проектов

Внесение изменений и привязка к участку строительства

В любой из проектов от компании VIPplan - Батайск по вашему желанию могут быть внесены изменения в материалы стен, материалы наружной отделки дома, а также будет произведена адаптация проекта под конкретный регион строительства (с учетом грунтов региона, геологических особенностей вашего участка и местных климатических условий) - БЕСПЛАТНО !!! (кроме проектов со скидкой и проектов наших партнеров).

Любой из проектов, размещенных на сайте bataysk.vipplan.ru мы можем выполнить из требуемых вам строительных материалов: ячеистый бетон (газобетон, пеноблок), керамоблок, кирпич, шлакоблок, бетонный блок, дерево (брус, клееный брус), каркасная технология (деревянный каркас, металлокаркас (ЛСТК)).

Фасад дома и его наружную отделку так же возможно выполнить с применением различных облицовочных материалов: структурной штукатурки, (с утеплителем и без), сайдингом (пластиковый или металлосайдинг), фиброплитами, кирпича.

 
6 Избранные
проекты

Доставка проектов по России: Москва (Московская область), Санкт-Петербург (Ленинградская область), Краснодар, Ростов-на-Дону, Ставрополь, Сочи, Волгоград, Новосибирск, Белгород, Брянск, Воронеж, Саратов, Хабаровск, Астрахань, Нальчик, Владикавказ, Екатеринбург, Тюмень, Самара, Нижний Новгород, Казань, Пермь, Уфа, Челябинск, Красноярск, Ханты-Мансийск, Иркутск, Курган, Оренбург, Омск, Томск, Барнаул, Новокузнецк, Кемерово, Абакан, Чита, Якутск, Южно-Сахалинск, Петропавловск-Камчатский и страны ближнего зарубежья: Белоруссия, Украина, Казахстан